HOME
SERVICE
ONE STOP RENOVATION
WORKS
COMPANY
BLOG
LINE相談
CONTACT
HOME
SERVICE
ONE STOP RENOVATION
WORKS
COMPANY
BLOG
LINE相談
CONTACT
HOME
SERVICE
ONE STOP RENOVATION
WORKS
COMPANY
BLOG
LINE相談
CONTACT
|お問い合わせ|
M,s Tec TOP <
ホーム
»
WORKS
»
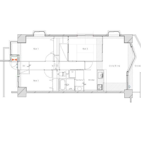
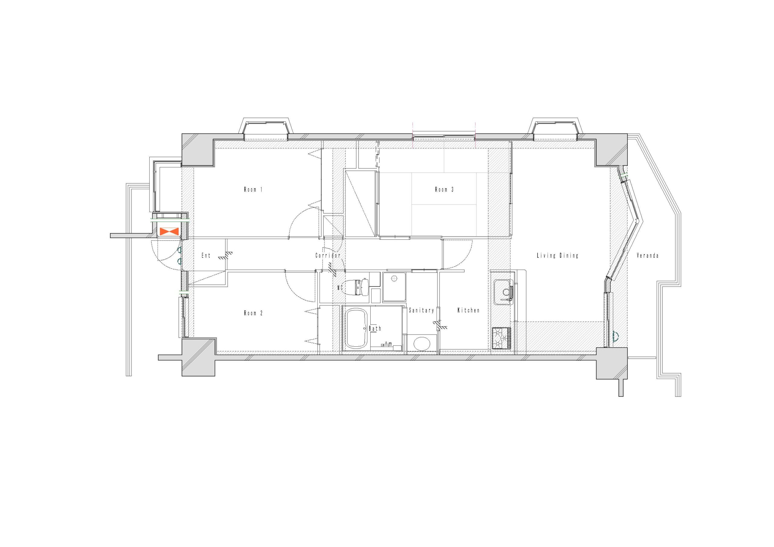
T邸 S Mansion 72.41㎡
T邸 S Mansion 72.41㎡
所在 広島県広島市安佐南区
種類 マンションリノベーション
面積 72.41平米
完工 2024年3月
一覧に戻る