“住む”を楽しむ。北欧ヴィンテージ×回遊動線の暮らし
ずっと賃貸でいいのか?──その問いから始まった、住まい探し

“住む”を楽しむ。北欧ヴィンテージ×回遊動線の暮らし
DIYが趣味というご夫婦がこだわったのは、住んだ後も手を加えながら“育てていける家”。

空間全体には北欧ヴィンテージのスタイルを取り入れ、
温もりのある木の素材とステンレスの質感が調和する、
シンプルで洗練された空間に。特にこだわったのは、対面式のステンレスキッチン。
背面の木パネルとも相性が良く、空間のアクセントになっています。

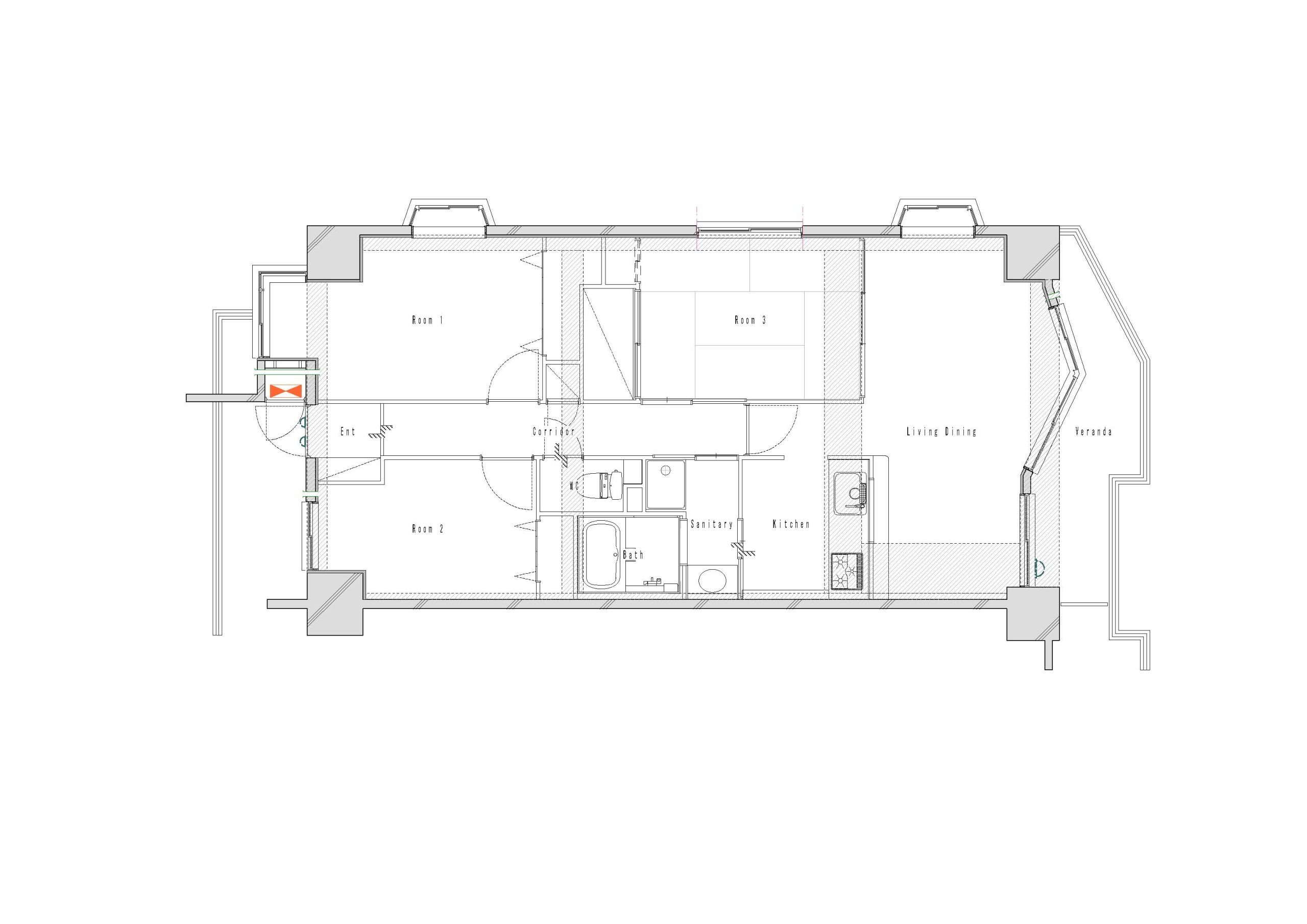
また、キッチン~ランドリールーム~脱衣所までの動線は、
回遊式に。毎日の家事・支度がスムーズにこなせます。

土間、書斎、ランドリー。家族みんなの「欲しい」が詰まった間取り
玄関土間は広めに。アウトドアが好きなご家族のために、
キャンプ用品やベビーカーなどもたっぷり収納できるスペースを確保しました。
家族それぞれの“自分時間”も大切にできるよう、書斎スペースも設けています。

「この家は、これからも自分たちの手でつくっていく場所」
アンティーク家具やDIYのアイデアを少しずつ取り入れながら、
住まいが家族とともに育っていく——そんな自由で心地よい暮らしを、リノベーションで実現しました。


面積:71.94㎡
間取り:3LDK→1LDK+WIC+土間+書斎+ランドリールーム
建物:マンション
完工時築年数:築28年
家族構成:ファミリー(お子さま1人)
リブパネルとラワンの書斎。回遊動線が繋ぐ、北欧ヴィンテージな暮らし。

コンクリート天井の無骨な表情に、リブパネルの繊細な陰影とラワン材の素朴な温もりをプラス。
北欧ヴィンテージ家具やグリーンが映えるマテリアルバランスにこだわりながら、キャンプや仕事、
家事といった日々の営みをシームレスに繋ぐ住まいです。

暮らしを止めない「回遊動線」と「一直線の家事動線」
間取りの核となるのは、家の中心をぐるりと回れる回遊動線です。
さらに、キッチンから洗面・脱衣室までの水廻りを一直線に配置することで、
家事の移動距離を最小限に短縮。機能的な裏付けがあるからこそ、
リビングでのくつろぎ時間がより豊かになります。

趣味を愛でる「土間」と「書斎」
キャンプ道具のための土間 広いモルタル土間は、週末のアウトドア基地。
キャンプ道具を詰め込んで出発し、帰宅後はそのままメンテナンスへ。
「趣味」と「収納」を兼ねたアクティブなスペースです。

ラワン材の書斎 リビングと緩やかに繋がりつつも、壁一面のラワン材が独特の没入感を生むワークスペース。
ヴィンテージのデスクやチェアが最も似合う、自分だけの特等席です。

開放的なリビングでグリーンを眺め、使い込まれた家具の手触りを楽しむ。
機能性とデザイン性が高い次元で融合した、永く住み継げるリノベーションです。

所在 広島県広島市安佐南区
種類 マンションリノベーション
面積 72.41平米
完工 2024年3月