“住む”を楽しむ。北欧ヴィンテージ×回遊動線の暮らし
ずっと賃貸でいいのか?──その問いから始まった、住まい探し
“住む”を楽しむ。北欧ヴィンテージ×回遊動線の暮らし
DIYが趣味というご夫婦がこだわったのは、住んだ後も手を加えながら“育てていける家”。
空間全体には北欧ヴィンテージのスタイルを取り入れ、
温もりのある木の素材とステンレスの質感が調和する、
シンプルで洗練された空間に。特にこだわったのは、対面式のステンレスキッチン。
背面の木パネルとも相性が良く、空間のアクセントになっています。
また、キッチン~ランドリールーム~脱衣所までの動線は、
回遊式に。毎日の家事・支度がスムーズにこなせます。
土間、書斎、ランドリー。家族みんなの「欲しい」が詰まった間取り
玄関土間は広めに。アウトドアが好きなご家族のために、
キャンプ用品やベビーカーなどもたっぷり収納できるスペースを確保しました。
家族それぞれの“自分時間”も大切にできるよう、書斎スペースも設けています。
「この家は、これからも自分たちの手でつくっていく場所」
アンティーク家具やDIYのアイデアを少しずつ取り入れながら、
住まいが家族とともに育っていく——そんな自由で心地よい暮らしを、リノベーションで実現しました。
面積:71.94㎡
間取り:3LDK→1LDK+WIC+土間+書斎+ランドリールーム
建物:マンション
完工時築年数:築28年
家族構成:ファミリー(お子さま1人)
“住む”を楽しむ。北欧ヴィンテージ×回遊動線の暮らし
DIYが趣味というご夫婦がこだわったのは、住んだ後も手を加えながら“育てていける家”。
空間全体には北欧ヴィンテージのスタイルを取り入れ、
温もりのある木の素材とステンレスの質感が調和する、
シンプルで洗練された空間に。特にこだわったのは、対面式のステンレスキッチン。
背面の木パネルとも相性が良く、空間のアクセントになっています。
また、キッチン~ランドリールーム~脱衣所までの動線は、
回遊式に。毎日の家事・支度がスムーズにこなせます。
土間、書斎、ランドリー。家族みんなの「欲しい」が詰まった間取り
玄関土間は広めに。アウトドアが好きなご家族のために、
キャンプ用品やベビーカーなどもたっぷり収納できるスペースを確保しました。
家族それぞれの“自分時間”も大切にできるよう、書斎スペースも設けています。
「この家は、これからも自分たちの手でつくっていく場所」
アンティーク家具やDIYのアイデアを少しずつ取り入れながら、
住まいが家族とともに育っていく——そんな自由で心地よい暮らしを、リノベーションで実現しました。
面積:71.94㎡
間取り:3LDK→1LDK+WIC+土間+書斎+ランドリールーム
建物:マンション
完工時築年数:築28年
家族構成:ファミリー(お子さま1人)
リブパネルとラワンの書斎。回遊動線が繋ぐ、北欧ヴィンテージな暮らし。
コンクリート天井の無骨な表情に、リブパネルの繊細な陰影とラワン材の素朴な温もりをプラス。
北欧ヴィンテージ家具やグリーンが映えるマテリアルバランスにこだわりながら、キャンプや仕事、
家事といった日々の営みをシームレスに繋ぐ住まいです。
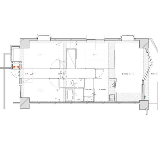
暮らしを止めない「回遊動線」と「一直線の家事動線」
間取りの核となるのは、家の中心をぐるりと回れる回遊動線です。
さらに、キッチンから洗面・脱衣室までの水廻りを一直線に配置することで、
家事の移動距離を最小限に短縮。機能的な裏付けがあるからこそ、
リビングでのくつろぎ時間がより豊かになります。
趣味を愛でる「土間」と「書斎」
キャンプ道具のための土間 広いモルタル土間は、週末のアウトドア基地。
キャンプ道具を詰め込んで出発し、帰宅後はそのままメンテナンスへ。
「趣味」と「収納」を兼ねたアクティブなスペースです。
ラワン材の書斎 リビングと緩やかに繋がりつつも、壁一面のラワン材が独特の没入感を生むワークスペース。
ヴィンテージのデスクやチェアが最も似合う、自分だけの特等席です。
開放的なリビングでグリーンを眺め、使い込まれた家具の手触りを楽しむ。
機能性とデザイン性が高い次元で融合した、永く住み継げるリノベーションです。
所在 広島県広島市安佐南区
種類 マンションリノベーション
面積 72.41平米
完工 2024年3月
コンクリート天井の無骨な表情に、リブパネルの繊細な陰影とラワン材の素朴な温もりをプラス。
北欧ヴィンテージ家具やグリーンが映えるマテリアルバランスにこだわりながら、キャンプや仕事、
家事といった日々の営みをシームレスに繋ぐ住まいです。
暮らしを止めない「回遊動線」と「一直線の家事動線」
間取りの核となるのは、家の中心をぐるりと回れる回遊動線です。
さらに、キッチンから洗面・脱衣室までの水廻りを一直線に配置することで、
家事の移動距離を最小限に短縮。機能的な裏付けがあるからこそ、
リビングでのくつろぎ時間がより豊かになります。
趣味を愛でる「土間」と「書斎」
キャンプ道具のための土間 広いモルタル土間は、週末のアウトドア基地。
キャンプ道具を詰め込んで出発し、帰宅後はそのままメンテナンスへ。
「趣味」と「収納」を兼ねたアクティブなスペースです。
ラワン材の書斎 リビングと緩やかに繋がりつつも、壁一面のラワン材が独特の没入感を生むワークスペース。
ヴィンテージのデスクやチェアが最も似合う、自分だけの特等席です。
開放的なリビングでグリーンを眺め、使い込まれた家具の手触りを楽しむ。
機能性とデザイン性が高い次元で融合した、永く住み継げるリノベーションです。
所在 広島県広島市安佐南区
種類 マンションリノベーション
面積 72.41平米
完工 2024年3月























