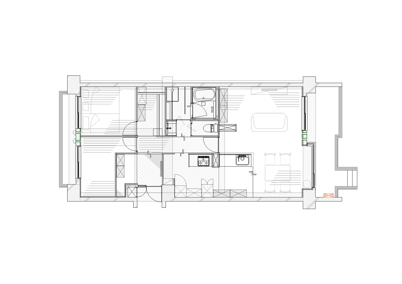
白と木を基調とした内装デザインと回遊動線を採用した、広島のマンションリフォーム事例。
本事例は、広島県内にあるマンションをリフォームした施工事例です。
白と木を基調とした内装デザインに、回遊動線や土間収納を取り入れ、
マンションの改修によって暮らしやすさを高めた住空間を実現しました。
キッチンを中心に回遊できる動線計画により、日々の家事や生活がスムーズにつながります。
マンションをフルリフォームすることで、限られた空間の中でも
快適性と使い勝手を両立した間取りを実現しました。
玄関には土間スペースとウォークインクローゼット(WIC)を設け、
収納力を確保しながら、生活動線に配慮したマンションリフォームとしています。
広島エリアでの住まいづくりとして、長く心地よく暮らせる住空間を目指しました。
白と木を基調とした内装デザインに、回遊動線や土間収納を取り入れ、
マンションの改修によって暮らしやすさを高めた住空間を実現しました。
キッチンを中心に回遊できる動線計画により、日々の家事や生活がスムーズにつながります。
マンションをフルリフォームすることで、限られた空間の中でも
快適性と使い勝手を両立した間取りを実現しました。
玄関には土間スペースとウォークインクローゼット(WIC)を設け、
収納力を確保しながら、生活動線に配慮したマンションリフォームとしています。
広島エリアでの住まいづくりとして、長く心地よく暮らせる住空間を目指しました。
・広島エリアでのマンションリフォーム事例
・回遊動線による家事効率の向上
・土間とWICを備えた間取り計画
・白と木を基調とした内装デザイン
・マンション改修による住空間の再構築
所在 広島市
種類 マンションリフォーム
面積 71.53平米
完工 2025年3月
・回遊動線による家事効率の向上
・土間とWICを備えた間取り計画
・白と木を基調とした内装デザイン
・マンション改修による住空間の再構築
所在 広島市
種類 マンションリフォーム
面積 71.53平米
完工 2025年3月

















