88㎡の細長い形状を活かしたマンションフルリノベーション事例。インナーテラスと室内窓で光と風を通し、白・木・モルタルでナチュラルに仕上げました。パントリーを通る回遊キッチンや廊下洗面など、家事効率とデザインを両立した住まいです。
Depth of Light - 「奥行き」を楽しむ、光と風の回廊

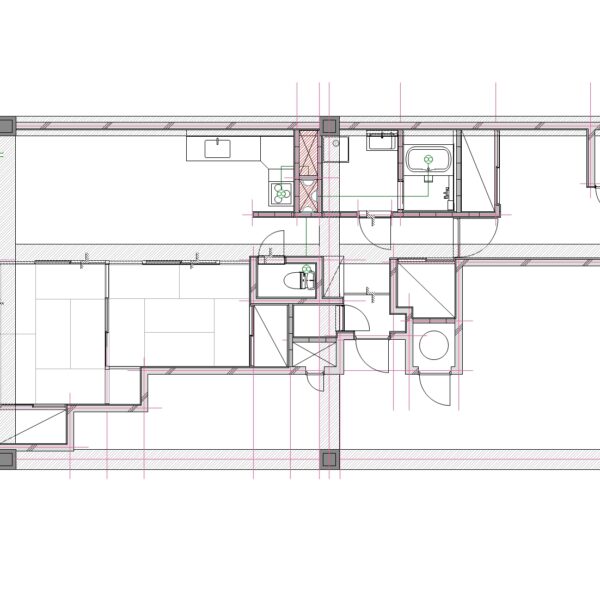
88.47㎡、奥行きのある細長い形状のマンション。
その特徴を「暗さ」ではなく、奥へと吸い込まれるような美しい
「シークエンス(連続性)」としてデザインしました。

ベースとなるのは、清潔感のある白、温かな天然木、そして無機質なモルタルとコンクリート。
異素材を組み合わせながらも、トーンを揃えることで生まれる「ナチュラル」な統一感。
窓辺のインナーテラスから取り込んだ光と風が、室内窓を通り抜け、家の隅々まで巡ります。
素材の質感と心地よい生活動線が重なり合う、優しく凛とした住まいです。

3つの特徴(Key Features)
01. Plan:細長い空間を活かす「インナーテラス」と「風の道」
マンション特有の細長い間取りの課題である採光と通風。これを解決するために、
窓辺に「インナーテラス」を設けました。サンルームとして植物を育てたり、ランドリースペースとしたり。
ここから取り込んだ光と風は、各所に設けた「室内窓」を通して、廊下や玄関土間まで届きます。
家全体が呼吸するような、健やかな空気環境を実現しました。

02. Kitchen:家事楽を叶える「パントリー回遊動線」
キッチンの背面には、大容量のパントリーを配置し、そこを通り抜けられる「回遊動線(ループ)」をつくりました。
[ 玄関 → パントリー → キッチン → リビング ] と繋がる動線は、買い物帰りの収納も、
料理中の動きもスムーズに。隠す収納と、行き止まりのない快適さが、家事のストレスを解消します。

03. Design:リブパネルとモルタル。白と木の「素材感」
空間のアクセントとして、リビングの一部に立体感のある「リブパネル」を採用。
光の当たる角度によって変わる陰影が、シンプルな空間に表情を与えます。
また、玄関土間から続く廊下には、モルタルと木の質感を組み合わせた造作洗面台を配置。
「ただいま」の手洗いを日常の美しい所作に変える、素材選びにこだわりました。

所在 広島市
種類 マンションリノベーション
面積 88.47平米
完工 2025年7月