広いルーフバルコニーを持つマンションのフルリノベーション事例。 コンクリート現しの天井に、ラワン材と白タイルを合わせたモードな空間。 家の中心にキッチンを配置し、キッチンから全てを見渡せる回遊動線を実現しました。 風通しとデザイン性を兼ね備えた住まいです。
「見守るキッチン」と「巡る動線」

広大なルーフバルコニーからの光と風を受け止める、コンクリート現しの空間。
私たちが目指したのは、無骨なインダストリアルではなく、素材のコントラスト際立つ「モード」な住まいです。

家の中心(Core)に大型のウォークインクローゼット(WIC)を据え、その周りをぐるりと回遊できる大胆なプランニング。
キッチンに立てば、リビングの小上がりで寛ぐ家族も、バルコニーの景色も、すべてを見渡すことができます。
デザインの鋭さと、暮らしを包み込む優しさが共存する、新しいリノベーションの形です。

こだわりのポイント
01. Design:コンクリートと「ラワン×白タイル」のモードな洗面空間
玄関土間から廊下へと続くアプローチには、この家の顔となる造作洗面台を配置。
荒々しいコンクリートの躯体に、素朴なラワン材と清潔感のある白いタイルを合わせることで、
洗練された「モードスタイル」を演出しました。帰宅してすぐに手洗いができる機能性はそのままに、
ギャラリーのような美しさを放ちます。

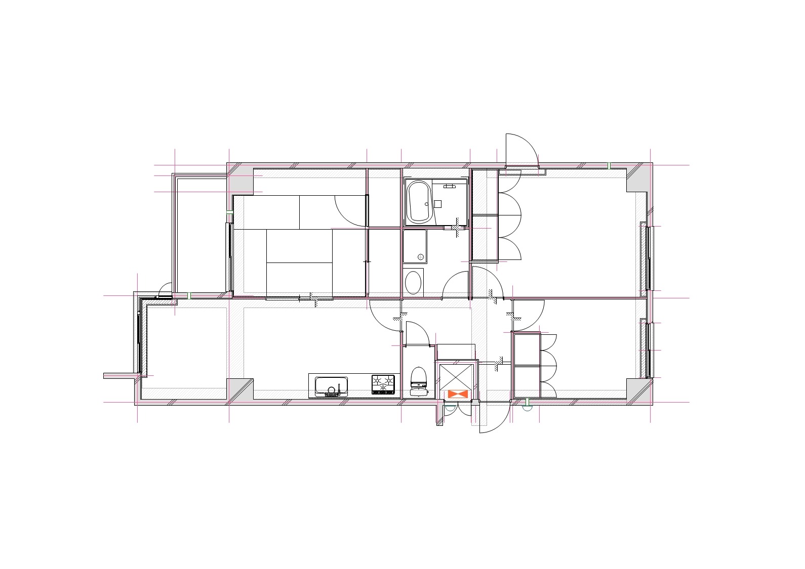
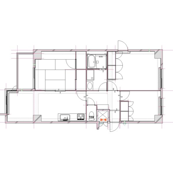
02. Plan:家の中心にWIC パントリー。全体を見渡す「司令塔キッチン」
間取りの最大の特徴は、住まいの真ん中に配置したウォークインクローゼット(WIC)パントリー。
このコアを軸に、居住空間が回遊できる設計です。
壁付けから対面式に変更したキッチンは、まさに家の司令塔。
料理をしながら、リビングの小上がりで遊ぶお子様の様子や、室内窓越しの気配、
そしてルーフバルコニーの開放感まで、家全体に目が届く安心の配置です。

03. Comfort:ルーフバルコニーと室内窓が運ぶ「風の道」
希少な広いルーフバルコニーの恩恵を最大限に活かすため、バルコニーから取り込んだ新鮮な空気が、
窓を通ってWICや廊下、玄関土間へと抜け、家全体に心地よい気流を生み出します。
マンションであることを忘れるほどの「風通し」の良さが、日々の暮らしをリフレッシュさせます。

04. Relax:リビングの一角に設けた「小上がり」スペース
クールなLDKの中に、ほっと一息つける「小上がり」を造作。
床座でくつろいだり、洗濯物を畳んだり、お子様のプレイスペースにしたりと多目的に使えます。
段差が生むリズムが、広いリビングのアクセントにもなっています。

所在 広島市
種類 マンションリノベーション
面積 74.92平米
完工 2025年8月