HOME
SERVICE
ONE STOP RENOVATION
WORKS
COMPANY
BLOG
LINE相談
CONTACT
HOME
SERVICE
ONE STOP RENOVATION
WORKS
COMPANY
BLOG
LINE相談
CONTACT
HOME
SERVICE
ONE STOP RENOVATION
WORKS
COMPANY
BLOG
LINE相談
CONTACT
|お問い合わせ|
M,s Tec TOP <
ホーム
»
WORKS
»
N邸 N Mansion 81.25㎡
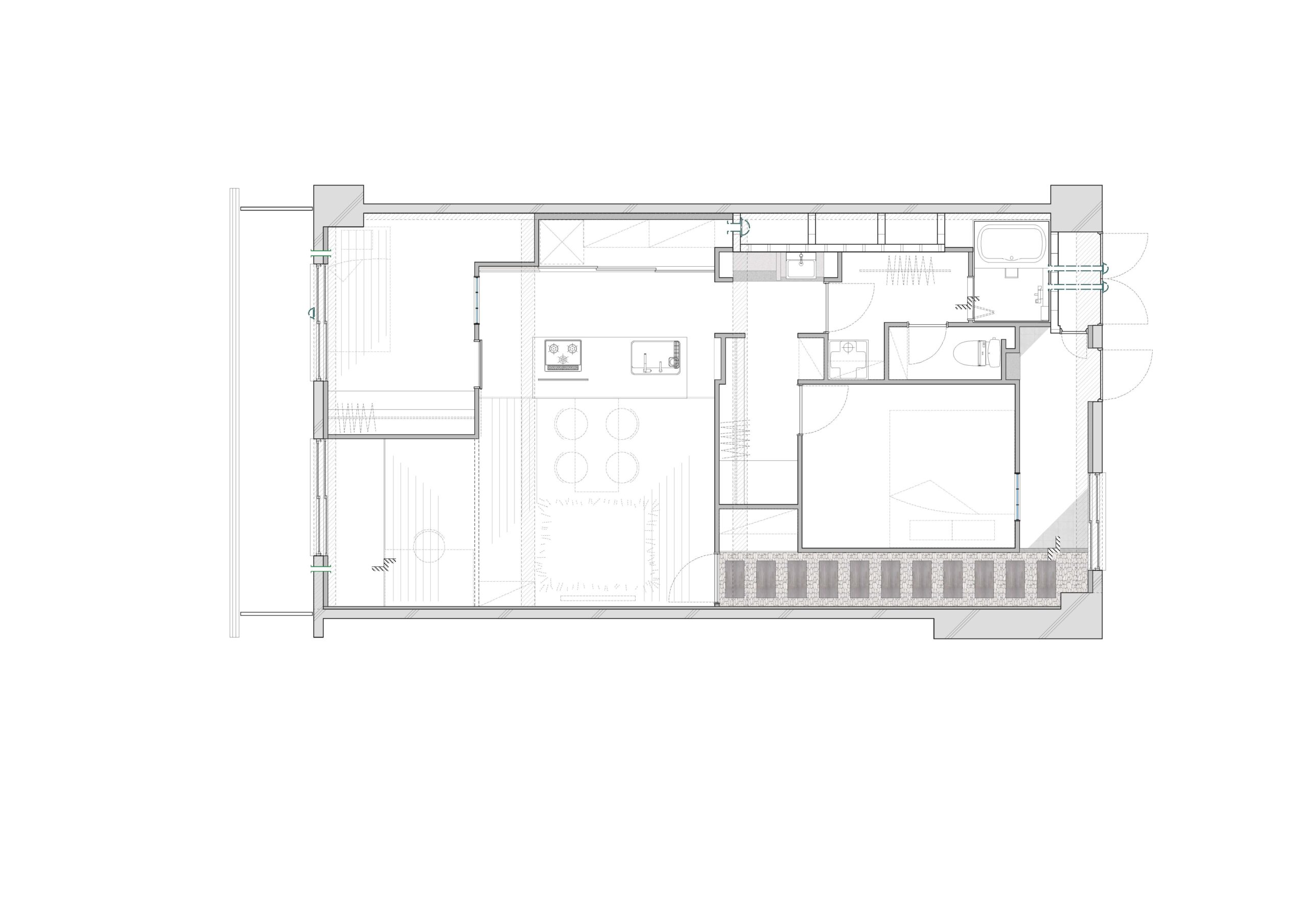
N邸 N Mansion 81.25㎡
所在 広島県広島市東区
種類 マンションリノベーション
面積 81.25平米
完工 2024年4月
一覧に戻る